
Location: Holland Park West, QLD
Status: On the Drawing Board
Project Type: New Build House
Design Team: Pacifik Design Studio

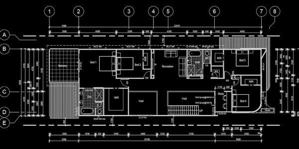
Ground Floor Plan

First Floor Plan
We use cookies to analyze website traffic and optimize your website experience. By accepting our use of cookies, your data will be aggregated with all other user data.